Our apartment “Ferjanc” is located in the 3rd district of Vienna, Radetzkystraße 5/7 and is very easy to reach by public transport.
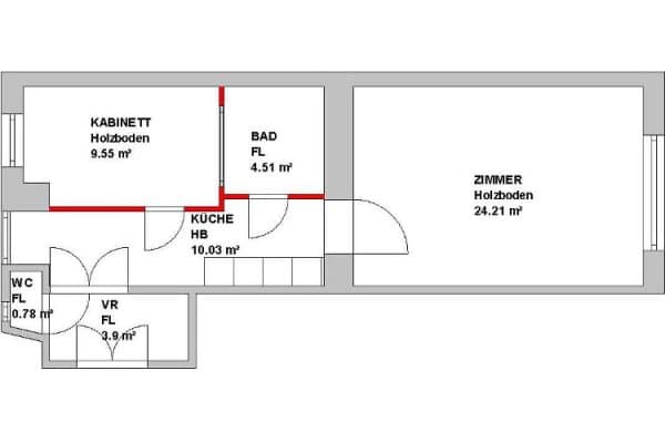
The modern and fully furnished apartment with a size of 53 m², has a bedroom, a living room, a fully equipped kitchen, a vestibule, a bathroom (bath tub and washing machine) and a toilet.
The apartment has been decorated with artwork by Emy Ferjanc.
The prices are valid for occupancy up to 2 persons.
