Unser Apartment „Metaphern“ befindet sich in Wien 12., Tanbruckgasse 33/16 und ist mit öffentlichen Verkehrsmitteln sehr gut erreichbar.
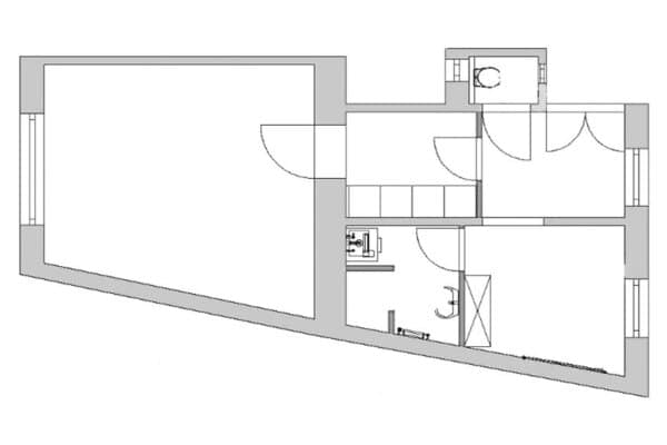
Das moderne und vollmöblierte Apartment mit einer Größe von 44m², verfügt über ein Schlafzimmer, ein Wohnzimmer, eine vollausgestattete Küche, einen Vorraum, ein Bad (Dusche und Waschmaschine) und ein WC.
Das Apartment wurde mit Kunstwerken von Hubert Fischlhammer gestaltet.
Die Preise gelten bei Belegung bis zu 2 Personen.
